Beschrijving
Ruime gezinswoning met twee garages, ruime serre, zes zonnepanelen en rustig aan een plantsoen gelegen.
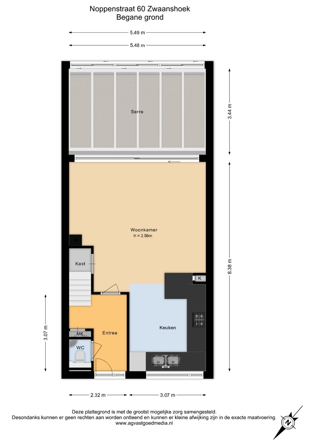
De woning ligt op een rustige plek aan de rand van Zwaanshoek. Voor de deur geen auto's maar een plantsoen. In de achtertuin is er een ruime serre van 18 vierkante meter (zit niet in het woonoppervlak) en twee garages, elk met elektrische kanteldeur. Op de verdiepingen is er de beschikking over vier ruime slaapkamers. Op de tweede verdieping aan de achterzijde een kunststof dakkapel.
De woning ligt in een rustige, kindvriendelijke wijk met relatief veel gezinnen. Op loopafstand vind je het centrum van Zwaanshoek, scholen en speelgelegenheden. Supermarkten liggen op fietsafstand en via de nabijgelegen uitvalswegen ben je snel onderweg richting Haarlem, Hoofddorp en Schiphol.
Indeling
Binnenkomst in de ruime hal met toilet (wandcloset en fonteintje), meterkast (8 groepen) en trapopgang. De ruime woonkamer is voorzien van een PVC vloerafwerking. De zithoek aan de achterzijde heeft een gezellige houtkachel en een grote (18 m2) serre die via een schuifdeur toegankelijk is. De keuken aan de voorzijde van de woning is voorzien van koel-/vriescombinatie, vaatwasser, 4 pits gastoestel, boiler en losse oven en magnetron.
Er zijn twee garages in de achtertuin met een tussendeur. Beide garages hebben een elektrische kanteldeur.
Eerste verdieping
Op de eerste verdieping zijn drie slaapkamers en een badkamer. De kamers aan de achterzijde zijn nog voorzien van enkel glas. Op de vloeren ligt laminaat. Aan de voorzijde is de slaapkamer voorzien van dubbel glas. In de badkamer bevinden zich een douchecabine, toilet, wastafel en whirlpool-bad.
Tweede verdieping
De tweede verdieping is via een vaste trap bereikbaar. Op de voorzolder bevind zich de opstelplaats voor de wasmachine en c.v. (Nefit 2022). De vierde slaapkamer is mede door de grote dakkapel (kunststof, dubbel glas) zeer ruim.
Bijzonderheden
- Woonoppervlakte 118,93 m²
- Perceel 177 m²
- Vier ruime slaapkamers
- Zes zonnepanelen
- Energielabel C, is van voor plaatsing zonnepanelen
- Rustig gelegen plantsoen
- Twee garages direct achter het huis
- Gelegen in een rustige, groene en kindvriendelijke omgeving
- Volop mogelijkheden om de woning naar eigen wens en stijl te moderniseren
- Oplevering in overleg.