Beschrijving
Unieke vrijstaande woonboerderij aan vaarwater in Warmond met ligplaats, garage/koetshuis, groot bijgebouw en een fenomenaal vrij uitzicht over het polderlandschap.
Koopsom vanaf € 1.250.000,-
Op een fraaie locatie direct aan vaarwater in Warmond ligt deze karaktervolle vrijstaande woonboerderij uit 1910 met garage/koetshuis, bijgebouw, ligplaats en een uniek uitzicht over het polderlandschap. Het geheel staat op een royaal perceel van 1.470 m² eigen grond en biedt een indrukwekkende combinatie van wonen, werken, hobby en opslag.
Met circa 527 m² woonoppervlakte en maar liefst circa 332 m² overige inpandige ruimte is dit een object van uitzonderlijke omvang en veelzijdigheid. Door de jaren heen is het geheel zorgvuldig onderhouden en op veel punten gemoderniseerd.
Ligging:
De woonboerderij is gelegen aan de rand van Warmond, direct aan vaarwater en in een prachtig groen buitengebied. Hier woont u landelijk en vrij, met weids uitzicht over de graslanden, terwijl het historische centrum van Leiden en diverse dagelijkse voorzieningen zich op korte fietsafstand bevinden. De ligging is bovendien bijzonder gunstig ten opzichte van de uitvalswegen richting Amsterdam, Schiphol, Leiden en Den Haag, waardoor rust, ruimte en bereikbaarheid hier op fraaie wijze samenkomen.
Daarnaast ligt de woning op een heerlijke locatie nabij De Kaag / de Kagerplassen, middenin het karakteristieke landschap van de Boterhuispolder. Dit open veenweidegebied staat bekend om zijn natuur, weidevogels en recreatieve waarde en vormt samen met het water en de omliggende polders een bijzonder aantrekkelijk woonmilieu voor liefhebbers van varen, wandelen, fietsen en buitenleven.
Indeling
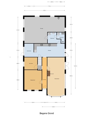
Begane grond Woonhuis:
De begane grond van het woonhuis biedt een speelse en royale indeling. Via de entree komt u in de woning, waarna de sfeer direct wordt bepaald door de karaktervolle woonkamer met erker, open haard en vrij uitzicht over water en polderlandschap. De ruime woonkeuken vormt een heerlijk centraal punt in het huis en is voorzien van vloerverwarming. Daarnaast beschikt deze verdieping over een garderobe, bijkeuken, badkamer, ruime slaapkamer, kelder en een opkamer die zich uitstekend leent als kantoor-/werkruimte. Vanuit het woonhuis is bovendien doorgang naar de garage/koetshuis met veel praktische bergruimte en mogelijkheid tot het binnen parkeren van uw auto.
Bijgebouw:
Het bijgebouw is op de begane grond van indrukwekkende omvang en biedt uitzonderlijk veel gebruiksmogelijkheden. Hier bevinden zich onder meer een grote garage, diverse bergingen, een woonkeuken met keukenopstelling, een badkamer met sanitaire voorzieningen en aanvullende ruimtes die flexibel kunnen worden gebruikt. Het bijgebouw is door zijn omvang uitermate geschikt voor opslag, atelier, hobby- of praktijkruimte of een combinatie hiervan. Het geheel onderstreept het multifunctionele karakter van dit bijzondere object.
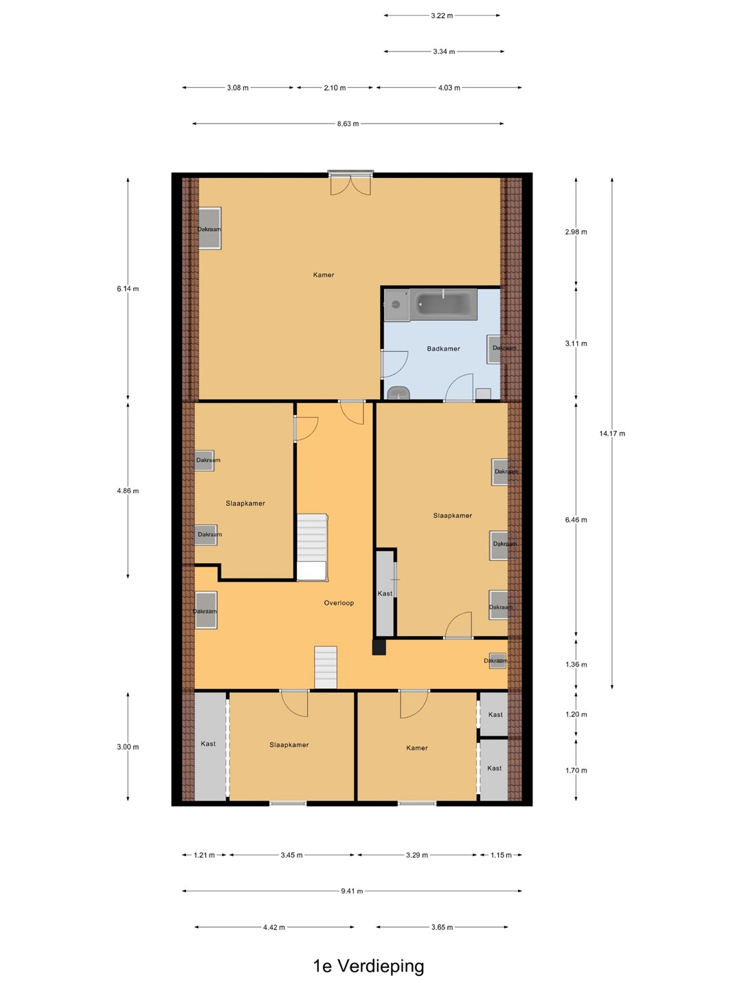
Eerste verdieping
Woonhuis:
Ook de eerste verdieping van het woonhuis is verrassend royaal opgezet. Hier bevinden zich meerdere slaapkamers, een 2e badkamer en diverse extra kamers die naar wens kunnen worden ingericht als slaapvertrek, werkkamer, speelkamer of muziekstudio. De indeling is ruim en praktisch, waardoor deze verdieping zich uitstekend leent voor grotere huishoudens of voor kopers die veel extra leefruimte wensen.
Bijgebouw:
De eerste verdieping van het bijgebouw biedt opnieuw een indrukwekkende hoeveelheid ruimte. Deze verdieping beschikt over een woonkamer, meerdere slaap-en werkkamers, een toilet en diverse overlopen en nevenruimtes. Juist deze opzet maakt het bijgebouw bijzonder interessant voor kopers die op zoek zijn naar ruimte voor gasten, inwonende kinderen, werken aan huis of creatieve doeleinden zoals atelier- of hobbyruimte.
Tweede verdieping
Woonhuis:
De tweede verdieping van het woonhuis bestaat uit een zolderverdieping met dakramen en aanvullende bergruimte. Deze verdieping draagt bij aan het royale karakter van het object en biedt volop praktische ruimte voor opslag en overige gebruiksmogelijkheden.
Bijgebouw:
Ook het bijgebouw beschikt over een tweede verdieping in de vorm van een zolderruimte met dakraam. Deze ruimte vormt een waardevolle aanvulling op het geheel en is ideaal als extra bergruimte of voor ondersteunend gebruik.
Tuin
Rondom de woonboerderij ligt een royaal erf met tuin, water en volop ruimte om van het buitenleven te genieten. De ligging direct aan vaarwater met ligplaats en open verbinding naar De Zijl maakt deze plek extra bijzonder. In combinatie met het vrije uitzicht over het polderlandschap ontstaat hier een zeldzaam woonmilieu waar rust, ruimte en natuur centraal staan. Het royale perceel biedt bovendien volop ruimte voor parkeren op eigen terrein en voor uiteenlopende buitengebruiksmogelijkheden.
Bijzonderheden
- Karaktervolle vrijstaande woonboerderij uit 1910
- Direct aan vaarwater gelegen, met eigen ligplaats en open vaarverbinding naar De Zijl
- Prachtig vrij uitzicht over het polderlandschap vanuit zowel de woning als vanuit de tuin
- Royaal perceel van 1.470 m² eigen grond
- Garage/koetshuis en groot bijgebouw aanwezig
- Zeer royaal van opzet met maar liefst 527 m² woonoppervlakte en 332 m² overige inpandige ruimte:
Het woonoppervlak is verdeeld over 267 m² in het woonhuis en 260 m² in het bijgebouw
De overige inpandige ruimte is verdeeld over 72 m² in het woonhuis en 260 m² in het bijgebouw
- Volop mogelijkheden voor wonen, werken, hobby, opslag of praktijk/atelier aan huis
- Door de jaren heen zorgvuldig onderhouden en op diverse punten gemoderniseerd
- Centraal gelegen in de Randstad, op een groene locatie nabij uitvalswegen en voorzieningen
- Oplevering in overleg
Koopsom vanaf € 1.250.000,- / Vraagprijs € 1.500.000,- k.k.
Alle biedingen vanaf € 1.250.000,- worden in overweging genomen