Beschrijving
Modern, instapklaar 2-kamerappartement (energielabel A) met zonnig balkon op het zuiden, eigen parkeerplaats én een privé-berging op de begane grond.
Koopsom vanaf € 400.000,-
Dit stijlvolle appartement is gelegen in een rustige, groene woonomgeving op de eerste verdieping van een modern appartementencomplex en is in 2023 vrijwel volledig gemoderniseerd. Hierbij zijn onder andere het stucwerk, de vloer, de keuken en de algehele afwerking vernieuwd.
De woning beschikt over een lichte woonkamer met open keuken, een comfortabele slaapkamer, een moderne badkamer, een separate toiletruimte en een praktische was-/technische ruimte.
Kortom: Een ideale woning voor wie luxe en gelijkvloers wil wonen!
Ligging:
De woning is gelegen in een rustige en moderne woonwijk met veel water en groen. De omgeving kenmerkt zich door een prettige woonomgeving met wandel- en fietsmogelijkheden direct in de buurt. Voorzieningen zoals winkels, horeca, sportfaciliteiten en openbaar vervoer bevinden zich op korte afstand.
Dankzij de centrale ligging zijn steden als Leiden, Haarlem en Amsterdam goed bereikbaar, zowel met de auto als met het openbaar vervoer.
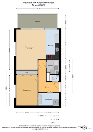
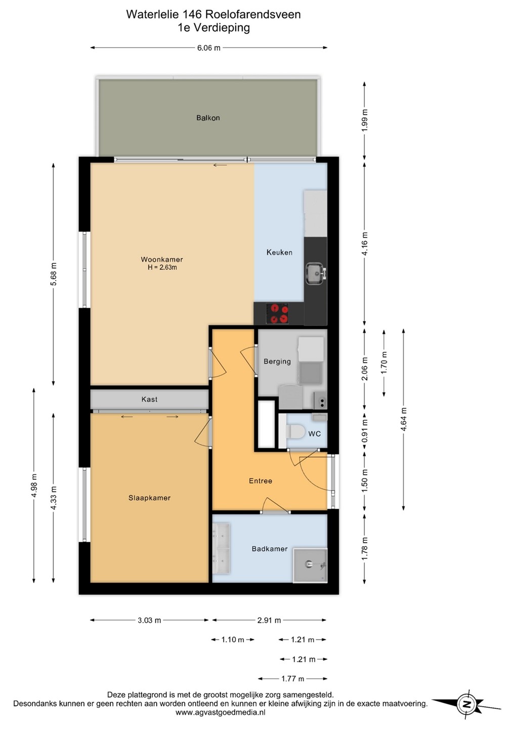
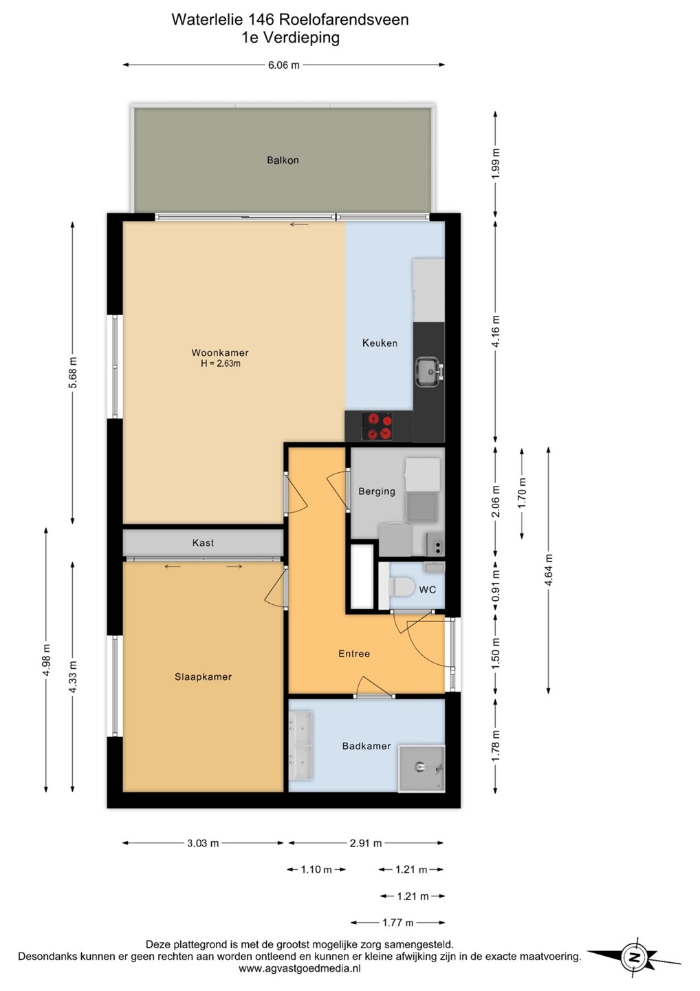
Indeling
Op de begane grond van het appartementencomplex bevinden zich de gezamenlijke entree, de lift- en trapopgang en de videofooninstallatie. De centrale entree is verzorgd en biedt toegang tot alle woonlagen.
Daarnaast beschikt het appartement over een eigen parkeerplaats op het terrein en een afsluitbare berging, ideaal voor het stallen van fietsen en het opbergen van extra spullen.
De berging is separaat bereikbaar, direct vanaf de parkeerplaats en praktisch in gebruik.
Eerste verdieping
Via de lift of het trappenhuis bereik je de woning op de eerste verdieping. Bij binnenkomst kom je in de hal, waar zich het separate toilet bevindt en van waaruit alle vertrekken toegankelijk zijn.
De woning is in 2023 vrijwel volledig gemoderniseerd, waarbij onder andere het stucwerk, de vloer, de keuken en de algehele afwerking zijn vernieuwd.
De ruime en lichte woonkamer vormt het hart van het appartement en beschikt over grote raampartijen en een schuifpui naar het balkon, wat zorgt voor een prettige lichtinval en een open sfeer.
De open keuken is in 2023 vernieuwd en uitgevoerd in een moderne, donkere kleurstelling. Deze is voorzien van diverse inbouwapparatuur en biedt voldoende werk- en opbergruimte.
Vanuit de woonkamer is het zonnige balkon op het zuiden bereikbaar, met vrij uitzicht over het water en het omliggende groen.
Verder beschikt deze verdieping over een comfortabele slaapkamer, een moderne badkamer met inloopdouche en dubbele wastafel, en een praktische was- en technische ruimte met opstelling voor wasmachine, droger en cv-installatie.
Balkon
Zonnig balkon op het zuiden met vrij uitzicht over groen en water.
Bijzonderheden
- Bouwjaar: 2008
- Woonoppervlakte: ca. 65 m² / Inhoud: ca. 215 m³
- In 2023 vrijwel volledig gemoderniseerd, inclusief strak stucwerk, nieuwe vloer, nieuwe
keuken en algehele afwerking.
- Energiezuinige woning met energielabel A.
- Zonnig balkon op het zuiden met uitzicht over water en groen
- Eigen parkeerplaats
- Afsluitbare privé berging op de begane grond
- Gezamenlijke entree met lift, trap en videofooninstallatie
- Rustige en waterrijke woonomgeving
- Centrale ligging: Binnen 30 minuten in Amsterdam, Leiden, Den Haag of op het strand
- Oplevering in overleg
Koopsom vanaf € 400.000,- / Vraagprijs € 450.000,-
Alle biedingen vanaf € 400.000,- worden in overweging genomen.