Goedhart Makelaars & Taxateurs
Goedhart Makelaars & Taxateurs
Nieuw in verkoop: Vijf Meiplein 120, 2321 BS Leiden
Nieuw in verkoop: Vijf Meiplein 120, 2321 BS Leiden
Nieuw in verkoop: Vijf Meiplein 120, 2321 BS Leiden
Nieuw in verkoop F

Vijf Meiplein 120, 2321 BS Leiden

€ 375.000,- k.k.

Beschrijving Vijf Meiplein 120

Koopsom vanaf € 375.000,-

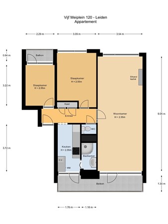
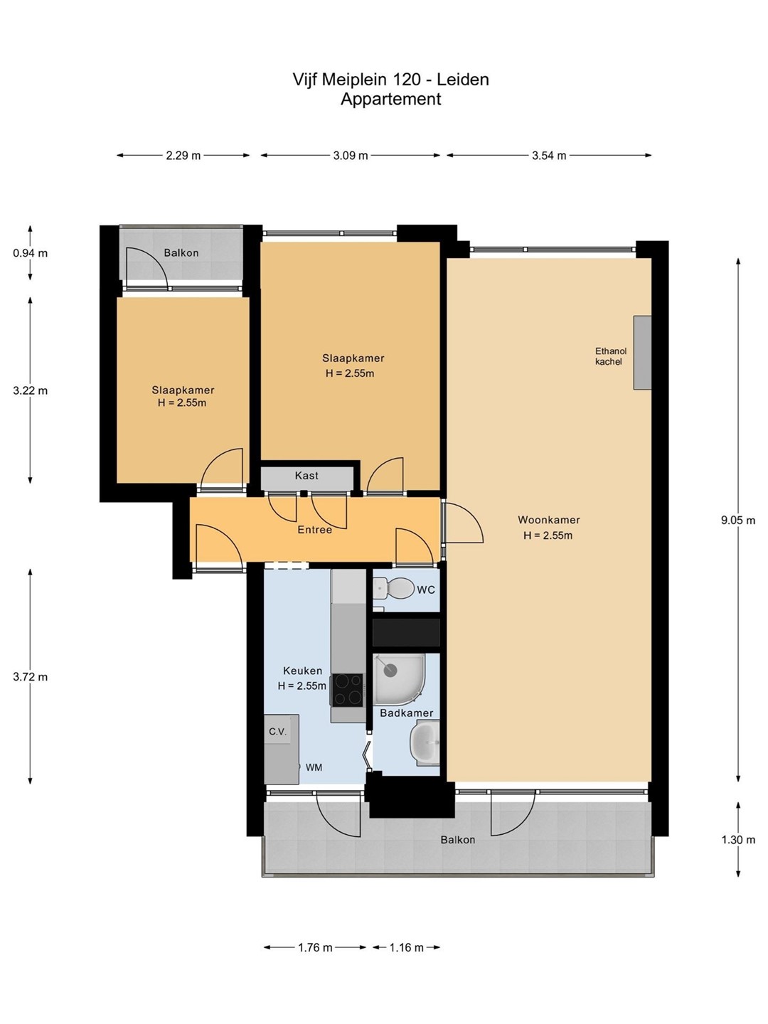
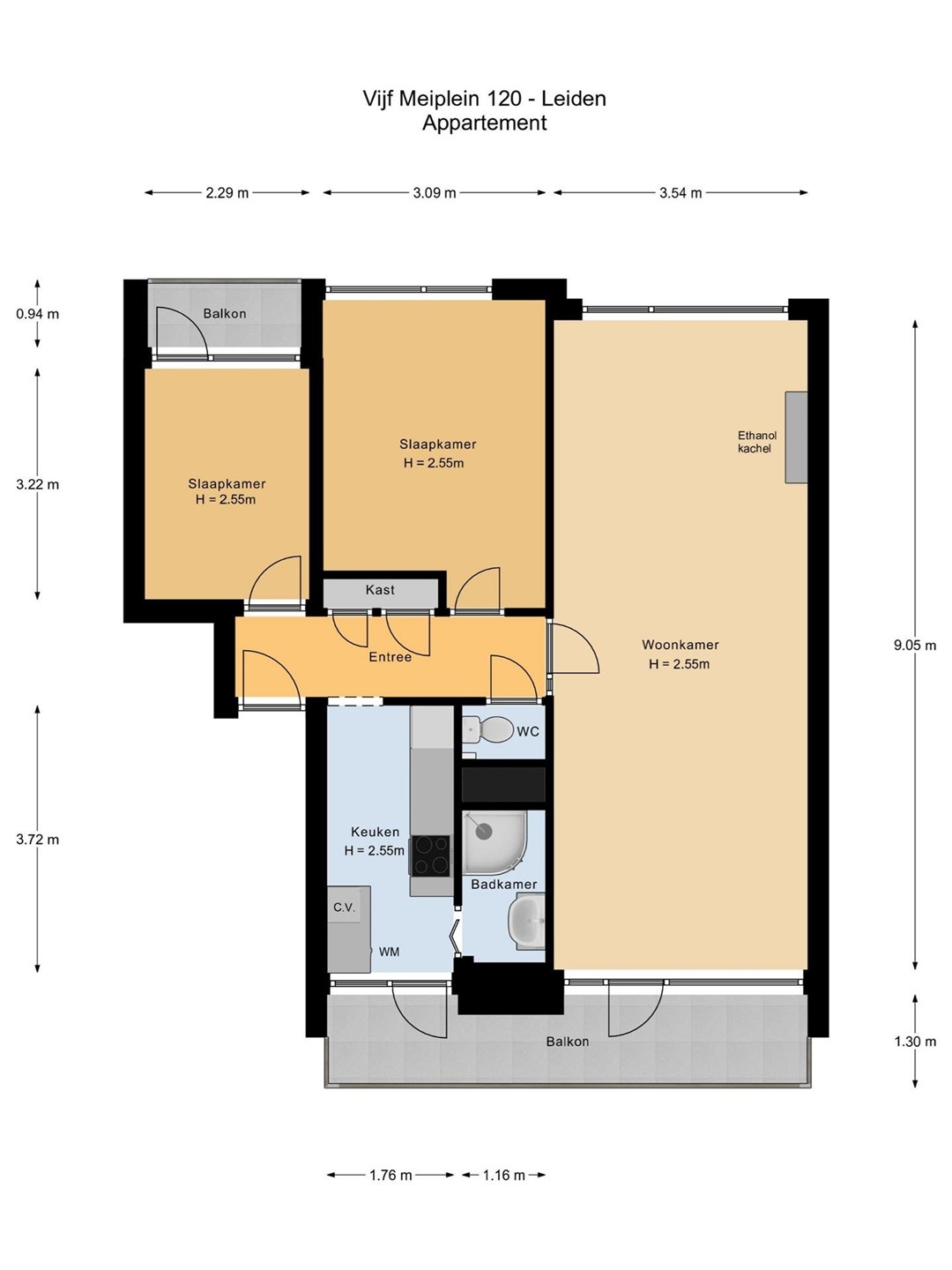
Zeer ruim en goed onderhouden 3-kamerappartement (71 m² woonoppervlakte) met 2 balkons en een privéberging op de begane grond!

Dit zeer gunstig gelegen appartement, nabij alle denkbare voorzieningen en het historische centrum van Leiden, bevindt zich op de topetage...

Kenmerken

Type object Appartement, portiekflat
Bouwperiode 1958
Status Nieuw in verkoop
Aangeboden sinds Dinsdag 7 oktober 2025

Vijf Meiplein 120 bekijken?

Wij plannen graag een bezichtiging met je in. Tijdens de bezichtiging vertelt een makelaar alles wat je wilt weten.