Beschrijving

Koopsom vanaf € 350.000,-

Zeer ruim en goed onderhouden 3-kamerappartement (71 m² woonoppervlakte) met 2 balkons en een privéberging op de begane grond!

Dit zeer gunstig gelegen appartement, nabij alle denkbare voorzieningen en het historische centrum van Leiden, bevindt zich op de topetage (3e verdieping) en is grotendeels voorzien van onderhoudsvriendelijke kunststof kozijnen met isolerende beglazing.

De woning beschikt over twee balkons: Één aan de voorzijde van de woning en een zonnig balkon op het zuiden, dat zich uitstrekt over de volledige breedte van het appartement. Hierdoor kunt u zowel van de zon als van de schaduw genieten, en door de ligging op de bovenste etage heeft u vrij uitzicht.

Ligging:
Het appartementencomplex is direct gelegen aan het Vijf Meiplein, dat de afgelopen jaren is getransformeerd tot het moderne winkelcentrum De Luifelbaan. Binnen dit winkelcentrum vindt u een breed aanbod aan winkels, waaronder Albert Heijn XL, HEMA, diverse speciaalzaken en meerdere eetgelegenheden.

Dankzij de gunstige ligging zijn het openbaar vervoer, de uitvalswegen (A4/A44/N11), de universiteitsgebouwen en het Bio Science Park uitstekend bereikbaar. Bovendien bevindt het bruisende centrum van Leiden zich op korte loopafstand.

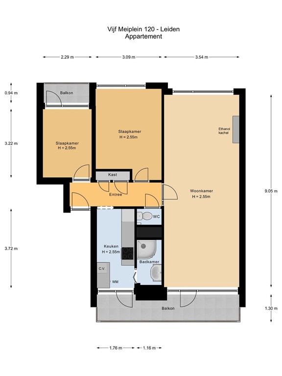
Indeling

Afgesloten entree met brievenbussen en bellentableau, trapopgang naar de bovengelegen verdiepingen en een privéberging (ca. 6 m²) voorzien van elektra.

Overige verdiepingen

3e Verdieping: 
Entree, hal/gang met kast en meterkast (6 groepen + 2 x aardlekschakelaar), nette toiletruimte met wandbetegeling en een staand toilet.

Luxe keuken met diverse inbouwapparatuur waaronder o.a. een koel/vries combinatie, gaskookplaat, oven, circulatiekap en opstelling van de C.V.-ketel (Vaillant 2013). Wasmachine aansluiting en plaats voor eventuele opstelling van een droger. 

De badkamer is voorzien van een wastafelmeubel en een douchecabine. 

De ouderslaapkamer bevindt zich aan de voorzijde van de woning en naast de ouderslaapkamer vindt u de 2e slaapkamer welke u toegang geeft naar het balkon aan de voorzijde. 

De ruime doorzonwoonkamer (32m²) heeft veel lichtinval door de grote raampartijen aan de voor- en de achterzijde met laminaatvloer en sfeerhaard. 
Vanuit de woonkamer is er toegang tot het zonnige balkon op het zuiden over de gehele breedte van het appartement.

Balkon

Balkons
Het appartement beschikt over maar liefst twee balkons. Aan de voorzijde bevindt zich een balkon dat bereikbaar is vanuit de tweede slaapkamer. Hier kunt u in de ochtenduren heerlijk genieten van de eerste zonnestralen en het levendige uitzicht over de buurt.

Aan de achterzijde ligt het royale balkon op het zuiden, toegankelijk vanuit de woonkamer. Dit balkon strekt zich uit over de gehele breedte van de woning en biedt een prachtig, vrij uitzicht. Dankzij de gunstige ligging geniet u hier de hele dag van de zon – een ideale plek om te ontspannen, een drankje te nuttigen of gezellig buiten te eten.

Bijzonderheden

- Bouwjaar: 1958
- Woonoppervlakte: 71 m²
- Eigen privéberging op de begane grond
- Goed onderhouden en direct te betrekken appartement
- Twee balkons, waarvan één op het zuiden over de gehele breedte van de woning
- Geheel voorzien van isolerende beglazing
- Servicekosten € 78,- per maand
- Oplevering in overleg.

Koopsom vanaf € 350.000,- k.k. / Vraagprijs € 375.000,-
Alle biedingen vanaf € 350.000,- worden in overweging genomen.

Kenmerken