Beschrijving
Zeer ruime vrijstaande villa aan vaarwater met royale zonnige tuin, 8 slaap-/werkkamers, 3 garages én een groot bijgebouw!
Koopsom vanaf € 1.000.000,--/ Vraagprijs € 1.100.000,--
Deze vrijstaande sfeervolle villa aan het geliefde Noordeinde biedt een scala aan mogelijkheden en een zee aan ruimte. De degelijk gebouwde karakteristieke woning beschikt over maar liefst 326 m2 woonoppervlakte met naast 6 slaap-/werkkamers een bijgebouw. Het bijgebouw bevat nóg 2 slaap-/werkruimtes en is geschikt voor bewoning of als atelier, hobby- of praktijkruimte. Ideaal voor grote gezinnen, samengestelde huishoudens, mantelzorg, een kantoor aan huis, bed & breakfast of dubbele bewoning. De woning is gelegen op een perceel van 1.012 m2 oppervlakte.
Aan de voorzijde kunt u beschikken over een eigen inrit met parkeergelegenheid voor meerdere auto's op eigen terrein, een dubbele garage (met vaste trap naar opbouw/appartement op de 1e verdieping), een ruime zonnige tuin op het zuidoosten én aan de achterzijde een derde (vrijstaande) garage met parkeergelegenheid direct ervoor.
Bent u op zoek naar een woning met veel ruimte, comfort en een centrale ligging in het gezellige Roelofarendsveen? Neem dan contact met ons op, wij plannen graag een bezichtiging met u in.
Ligging:
Niet alleen de woning zelf biedt volop gezinsgemak, ook de locatie is ideaal: op loopafstand van school, een grote speeltuin en voetbalkooi, een buurtwinkelcentrum en met de snelbus ben je binnen een half uur op Schiphol. Zie jij jezelf hier al wonen?
In de directe nabijheid bevindt zich het gezellige Noordplein, hier heb je een uitgebreid aanbod aan winkels en supermarkten. Ook de gezellige horecagelegenheden van Roelofarendsveen zijn op loopafstand bereikbaar. Daarnaast vindt u sportverenigingen en andere belangrijke voorzieningen in de directe omgeving.
Grote steden zoals Amsterdam, Leiden en Den Haag zijn binnen 30 minuten bereikbaar dankzij de gunstige ligging ten opzichte van de rijkswegen A4 en A44.
Binnen 15 minuten staat u met de auto op Schiphol.
Roelofarendsveen ligt in de waterrijke gemeente Kaag en Braassem, een toplocatie voor liefhebbers van water en natuur. Vanaf de woning vaart u zó naar het Braassemermeer, de Westeinderplassen en de Kagerplassen, waar u eindeloos kunt genieten van zeilen, varen of kanoën. Ook voor ontspanning op of aan het water is dit de perfecte plek. Daarnaast bieden de omliggende polders schitterende fiets- en wandelroutes die het wonen hier extra bijzonder maken.
Indeling
Parkeergelegenheid voor meerdere auto's aan de waterzijde en parkeergelegenheid voor de garages voor meerdere auto's.
De voortuin is voorzien van sierbestrating en plantenborders. Via de overdekte entree is er toegang tot de hal met garderobe, vide en een toiletruimte met toilet en fonteintje.
De ruime woonkamer is aan de voorzijde gelegen en heeft een fijne woonsfeer, mede dankzij de sfeervolle open haard. De grote raampartijen zorgen voor veel natuurlijk licht in de woning.
Doordat er op de begane grond een ruime slaap-/werkkamer aanwezig is, kan de woning eenvoudig levensloopbestendig worden gebruikt. Deze kamer, die momenteel als kantoor in gebruik is, heeft een directe toegang vanaf de voorzijde en beschikt tevens over een tuindeur.
De halfopen keuken is aan de tuinzijde gelegen en voorzien van een moderne L-vormige opstelling met een hardstenen werkblad en diverse inbouwapparatuur. Het aanwezige kookeiland beschikt over een 5-pits gaskookplaat en een RVS-afzuigkap en wordt tevens gebruikt als zitbar. Vanuit de keuken bieden openslaande deuren toegang tot de grote, zonnige tuin met sierbestrating, borders en diverse terrassen. Vanuit de tuin is er toegang tot het grote bijgebouw en de vrijstaande garage aan de achterzijde.
Bijgebouw
Het grote bijgebouw heeft een eigen entree aan de voorzijde en bestaat op de begane grond uit een hal met een uitgebreide meterkast en een moderne toiletruimte met vrijhangend toilet en fonteintje. Daarnaast biedt het toegang tot de bedrijfs-/praktijkruimte met magazijn en de dubbele garage aan de voorzijde. Het bijgebouw biedt een scala aan mogelijkheden voor een kantoor, praktijk of bedrijf aan huis en is tevens uitermate geschikt als extra woonruimte voor kinderen en/of ouders.
Op de eerste verdieping van het bijgebouw bevindt zich een grote extra slaap-/werkkamer van circa 27 m².
Eerste verdieping
De ruime overloop met vide biedt toegang tot twee zeer royale slaapkamers aan de voorzijde van de woning, het balkon en de vierde slaapkamer aan de achterzijde.
De volledig betegelde, complete badkamer is voorzien van een vrijhangend toilet, een ligbad, een designradiator, een hoekdouche met douchecabine, een wastafel in een badkamermeubel en aansluitingen voor zowel de wasmachine als de droger.
De vijfde kamer kan worden gebruikt als werk- of slaapkamer. Via deze kamer is er, middels een vaste trap, toegang tot de tweede verdieping.
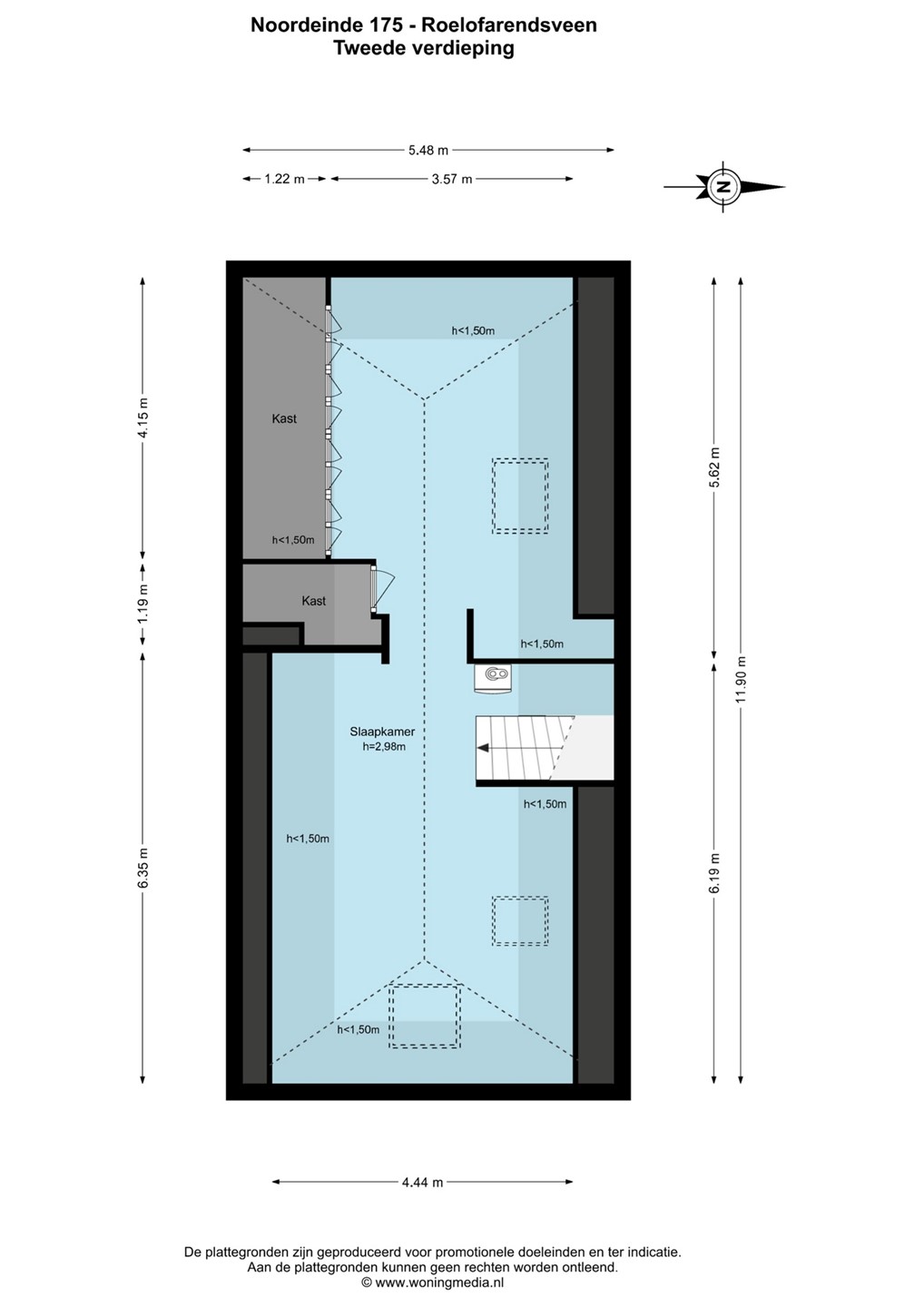
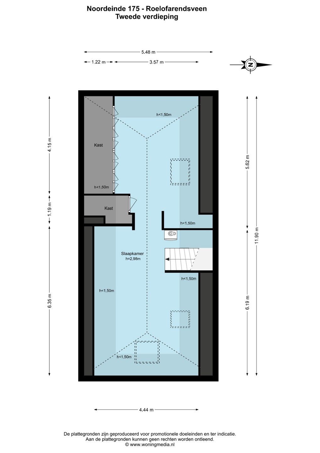
Tweede verdieping
Via een vaste trap te bereiken grote zolderruimte met een goede stahoogte (2,80 m) en de mogelijkheid om twee ruime slaapkamers te creëren, voorzien van een Velux-dakraam.
Balkon
Zonnig balkon aan de achterzijde van de 1e verdieping met uitzicht over de tuin en water.
Tuin
Rondom de woning ligt een royale tuin, waar je altijd een fijn plekje in de zon of juist in de schaduw vindt. Heb je groene vingers dan kun je je uitleven en leuke bloemen of groenteplanten verbouwen. De tuin is volledig betegeld, ideaal om je auto op eigen terrein aan de voorzijde van het huis te parkeren.
In de achtertuin zit je volledig beschut en kun je genieten van lange zomeravonden, gezellige borrels of etentjes met familie en vrienden. Hier bevindt zich vanaf het stenen terras een looppad naar de garage.
Vanuit je eigen huis direct het water op om te kanoën of te suppen in de waterrijke omgeving van de Veense Polder?
Het kan hier! Dankzij de ruimte is er volop mogelijkheid om meerdere zithoekjes te creëren, een grote eettafel neer te zetten, speeltoestellen voor de kinderen te plaatsen of zelfs een tuinkas te realiseren.
Garages
Een groot pluspunt van deze woning zijn de drie royale bijbehorende garages. Hier is alle ruimte voor het stallen van fietsen, het opslaan van spullen én het parkeren van meerdere auto’s.
Bijzonderheden
- Bouwjaar: 1974
- Woonopp.: 326 m² + 56 m² aan bergruimte (3 ruime garages)
- Perceel 1.012 m² eigen grond
- Centrale locatie in de Randstad, gelegen in het groene hart
- 8 slaap-/werkkamers, waarvan 1 op begane grond
- Gelegen aan doorgaand vaarwater mét vaarverbinding naar het Braassemermeer.
- Het geheel is goed onderhouden en zeer degelijk gebouwd
- Bouwtechnisch keuringsrapport aanwezig / Energielabel C
- Meerdere parkeerplaatsen op eigen terrein.
- Unieke ruime woning, ideaal voor grote gezinnen, samengestelde huishoudens, mantelzorg of voor kantoor-/praktijkruimte in het grote bijgebouw.
- 22 Zonnepanelen aanwezig.
- Geheel voorzien van houten kozijnen met dubbele beglazing
- Ruime en gezellige woonkamer met veel lichtinval
- Tuin rondom
- Alle voorzieningen op loopafstand
- Oplevering in overleg.
Koopsom vanaf € 1.000.000,-- / Vraagprijs € 1.100.000,--
Alle biedingen vanaf € 1.000.000,-- worden in overweging genomen.