Beschrijving
Ruim en rustig wonen aan een autovrij pad
Aan een verkeersvrij wandelpad staat deze royale en uitgebouwde woning (148m²) met maar liefst vijf (en eventueel zes) slaapkamers, twee badkamers, twee toiletruimtes en een zonnige tuin op het zuidwesten. Aan de voorzijde heb je uitzicht op groen en achter in de tuin geniet je volop van de zon. Dankzij de grote raampartijen valt er veel licht binnen en het geheel is uitstekend onderhouden. Parkeren kan eenvoudig aan beide kanten van het pad, op de ruime openbare parkeerplaatsen op korte loopafstand.
Voor gezinnen is dit een heerlijke plek: kinderen kunnen veilig buitenspelen in de wijk en diverse speeltuintjes zijn in de buurt te vinden. Scholen en kinderopvang liggen op loopafstand, evenals het gezellige centrum van Hoofddorp. Ook de bereikbaarheid is ideaal: de buslijn stopt om de hoek en brengt je rechtstreeks naar het station. Met de fiets ben je zo bij de Toolenburger Plas of het Haarlemmermeerse Bos, en met de auto rijd je gemakkelijk richting strand, Haarlem, Leiden, Amsterdam of Schiphol.
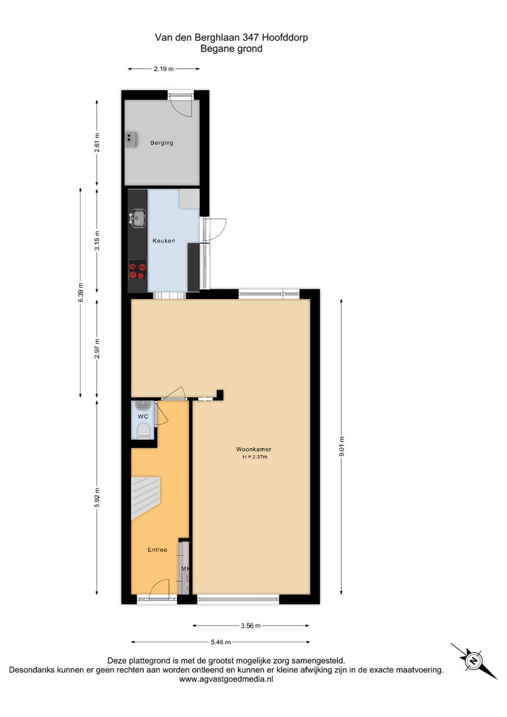
Indeling
De bijna zes meter diepe hal is een lichte entree met trapopgang en een vaste kastenwand waarin ook de meterkast verwerkt is. De toiletruimte is voorzien van een wandcloset en fonteintje.
Omdat de keuken is verplaatst naar de aanbouw, heeft de woning een ruime L-vormige woonkamer. Het zitgedeelte ligt aan de voorzijde, terwijl het eetgedeelte grenst aan de achtertuin.
Via een fraaie, halfronde doorgang kom je in de keuken. Deze royale, grijze opstelling beschikt over twee houtlook werkbladen en alle gewenste apparatuur: inductiekookplaat, afzuigkap, oven, vaatwasser en koelkast. Vanuit de keuken is er toegang tot de achtertuin.
Eerste verdieping
Op de eerste etage bevinden zich drie slaapkamers, een royale was-/bergruimte, een badkamer en een aparte toiletruimte. De badkamer is uitgevoerd met een granitovloer, witte en blauwe wandtegels, een ruime douche en een houten meubel met waskom. Het separate toilet (met sanibroyeur) is afgewerkt met lichte tegels en houtaccenten.
De twee grootste slaapkamers zijn geschikt voor een tweepersoonsbed en hebben ingebouwde kasten. De derde kamer kan ideaal dienen als kinderkamer of werkkamer. Aan de achterzijde links is de was-/bergruimte gesitueerd, die eventueel ook als extra slaapkamer gebruikt kan worden.
Tweede verdieping
Deze woning beschikt over drie woonlagen. Via een vaste trap kom je op de lichte overloop met dakkoepel, die toegang geeft tot nog twee slaapkamers.
Daarnaast vind je op deze verdieping een diepe bergkast en een tweede badkamer, ideaal voor gezinnen met kinderen die zo hun eigen verdieping hebben. Deze badkamer is uitgerust met een ligbad/douchecombinatie en een wastafel.
Tuin
Heerlijke zonnige achtertuin op het zuidwesten met zonnescherm. Via de achtertuin is de achterom en de berging te bereiken.
Bijzonderheden
- Bieden vanaf € 500.000,-k.k.
- Oplevering in overleg, voorkeur z.s.m.
- Gebruikersoppervlakte wonen: 148m2
- Gelegen aan een autovrij gedeelte van de wijk, desondanks veel parkeerruimte
- Energielabel B
- Begane grond en voorzijde 1e verdieping kunststof kozijnen
- 2 badkamers
- 5 slaapkamers en mogelijkheid tot een 6e