Beschrijving
Opslagruimte te huur 21 m² op de begane grond!
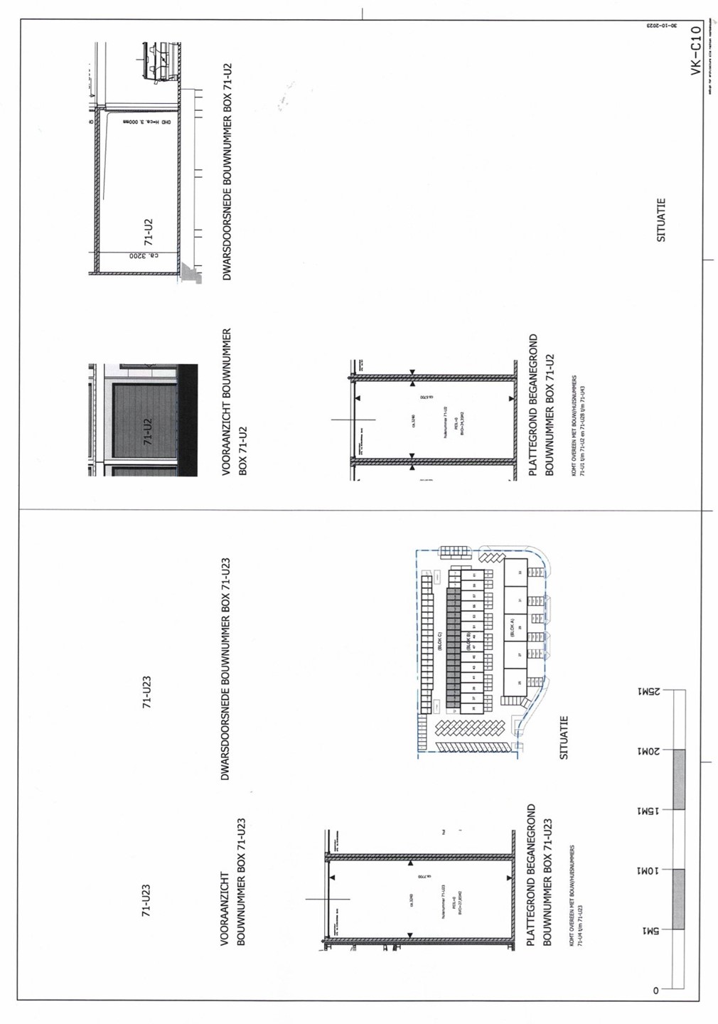
Op een uitstekende locatie op bedrijventerrein ‘De Lasso Noord’ in Roelofarendsveen bieden wij een praktische opslag- of stallingsbox van circa 21 m² te huur aan. Deze unit is gelegen op de begane grond en gelijk 1 van de eerste in de rij! De unit is voorzien van een overheaddeur en elektra.
Kenmerken:
Adres: Conservenweg 71, Roelofarendsveen
Oppervlakte: ca. 21 m²
Binnenmaat (lxbxh): ca. 6.700 x 3.240 mm, hoogte ca. 3.020 mm
Toegang: overheaddeur
Ligging: begane grond
Goede bereikbaarheid: direct aan de A4
Bestemming: ideaal voor opslag of stalling
Deze opslagruimte is uitermate geschikt voor het veilig opslaan of stallen van:
(Klassieke) auto’s
Campers, caravans, boten
Aanhangwagens of trailers
Archief, huisraad of zakelijke opslag
Zowel particuliere als zakelijke huurders zijn welkom. Dankzij de centrale ligging nabij steden als Leiden, Alphen aan den Rijn, de Bollenstreek en Haarlemmermeer, is deze locatie uitstekend bereikbaar.
Interesse of meer informatie? Neem gerust contact met ons op voor de actuele beschikbaarheid of een bezichtiging!
Indeling
Het verzamelgebouw is afgesloten met een elektrisch toegangshek en een separate loopdeur. De unit bevindt zich op de begane grond, wat het aanrijden bijzonder eenvoudig maakt. Bovendien is het de tweede garage direct na het toegangshek, wat zorgt voor een uitstekende toegankelijkheid.
Bijzonderheden
+ Bouwjaar 2025
+ Oppervlakte 6.70m x 3.24m.
+ Hoogte: 3.20m
+ Er zijn algemene sanitaire voorzieningen t.b.v. de units aanwezig.
+ Voor de gezamenlijke stroomkosten zijn er zonnepanelen aanwezig.
+ 2 Maanden borgstelling.
+ Voorschot elektra € 12,50 per maand.
+ Oplevering in overleg.
Huurprijs € 300,-- p/mnd