Beschrijving

Bieden vanaf € 325.000,- / Vraagprijs € 350.000,- k.k. 
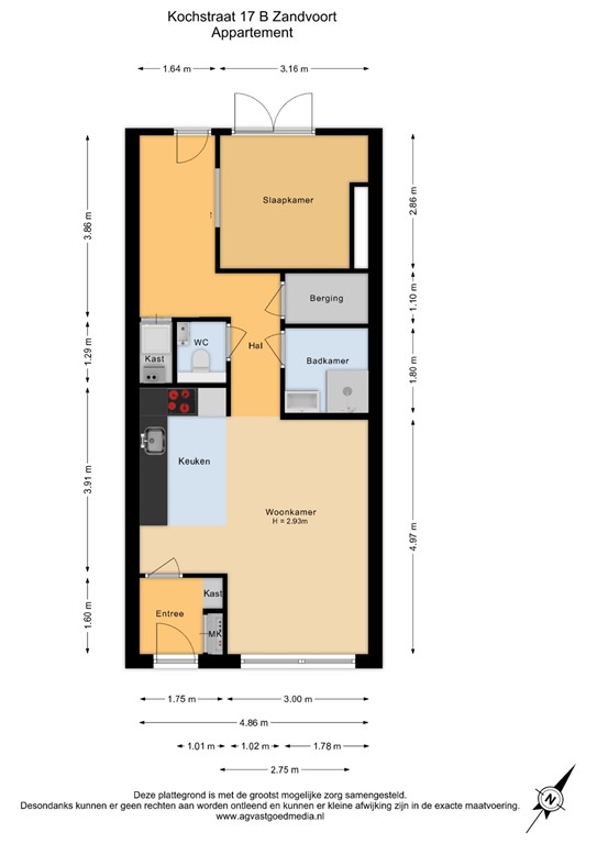
Bent u op zoek naar een woning waar u zó in kunt trekken? Dan is dit charmante, recent gerenoveerde en uitstekend onderhouden appartement precies wat u zoekt! De woning beschikt over een gezellige woonkamer met open keuken, een moderne badkamer, een aparte toiletruimte, een slaapkamer én een verrassend ruime achtertuin. Alles verkeert in topconditie, want in 2019-2020 is de woning volledig vernieuwd.

Indeling

De sfeervolle woonkamer heeft hoge plafonds en grote ramen, wat zorgt voor een mooie lichtinval. De L-vormige keuken is uitgevoerd in hoogglans wit met een antraciet werkblad en voorzien van diverse inbouwapparatuur. Vanuit de hal bereikt u de toiletruimte met fonteintje, een handige bergkast met aansluiting voor wasmachine en droger, en de moderne badkamer met wastafelmeubel, inloopdouche met stalen wand en regendouche.

Verderop in de gang vindt u een ruime hal die tevens te gebruiken is als inloopkast. Via de schuifdeuren komt u in de comfortabele slaapkamer, waar voldoende ruimte is voor een groot tweepersoonsbed. Vanuit de hal en de slaapkamer is er toegang tot de onderhoudsvriendelijke achtertuin van circa 26 m² – een heerlijke plek om buiten te genieten.

Tuin

Achtertuin van maar liefst 26m² is gelegen op het Noorden en heeft een achterom. Deze is te betreden via de hal en de slaapkamer.

Bijzonderheden

+ Bieden vanaf € 325.000,- / Vraagprijs € 350.000,- .
+ Energielabel A.
+ 58m² woonoppervlakte.
+ 26m² tuin.
+ Servicekosten € 126,11.
+ Instapklaar appartement in uitstekende staat.
+ Compleet gerenoveerd in 2019/2020.
+ Lichte woonkamer met open keuken.
+ Moderne badkamer en apart toilet.
+ Achtertuin van maar liefst 26m2.
+ Parkeren met vergunning, 1e auto gratis 2e auto € 50,- per jaar.

Kenmerken