Beschrijving

De woning is gelegen in het hart van Uithoorn, in een zijstraat van het Marktplein, langs de Amstel. Een levendige omgeving met diverse horecagelegenheden, winkels en de passantenhaven op korte afstand.

Na jaren van verhuur heeft de woning wat aandacht nodig, maar de basis is goed. De ruimtes zijn prettig ingedeeld en bieden volop mogelijkheden om er weer een fijne gezinswoning van te maken. De woning is voorzien van dubbel glas, deels kunststof kozijnen, een nieuwe cv-installatie (2024) en een kruipruimte met schelpenisolatie. Vanuit de verhuursituatie zijn op alle woonlagen eenvoudige voorzieningen aanwezig, zoals badkamers en keukens. Dit biedt praktische mogelijkheden voor wie de woning naar eigen wens wil moderniseren.

Scholen, kinderopvang en sportvoorzieningen bevinden zich in de directe omgeving. De bereikbaarheid is uitstekend: via de N196 en N201 zijn de uitvalswegen richting Amsterdam, Utrecht en Den Haag goed bereikbaar. Ook het openbaar vervoer ligt op loopafstand. Vanuit Uithoorn rijdt een tramverbinding richting Amstelveen en Amsterdam.

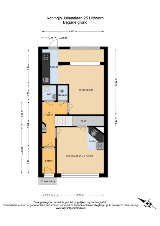
Indeling

Via de entree komt u in de hal met een tussendeur voorzien van glas-in-lood. Hier bevinden zich de meterkast, een toiletruimte en een kleine doucheruimte. Vanuit de hal leidt de trap naar de eerste verdieping.

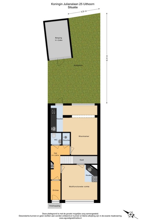
De keuken aan de voorzijde heeft een eenvoudige opstelling en biedt voldoende ruimte voor een eethoek. Aan de achterzijde ligt de woonkamer, die eveneens is voorzien van een eenvoudige keukenopstelling. Vanuit deze ruimte is er toegang tot de achtertuin met een vrijstaande houten berging en een achterom.

Eerste verdieping

Op de eerste verdieping bevinden zich aan de voorzijde twee slaapkamers. De ruime derde slaapkamer ligt aan de achterzijde. Ook hier is een eenvoudige keukenopstelling aanwezig, evenals een badkamer met douche en toilet. Vanuit deze kamer is er toegang tot een klein balkon.

Tweede verdieping

Via een vaste trap is de zolderverdieping bereikbaar. De huidige indeling bestaat uit een slaapgedeelte aan de voorzijde en aan de achterzijde een kleine keuken met daarnaast een badkamer voorzien van douche en toilet. Zowel aan de voor- als achterzijde is een dakkapel geplaatst. Daarnaast zijn er meerdere vaste kasten, waaronder een kast met de cv-installatie (Nefit, 2024).

Bijzonderheden

- Bouwjaar: 1940
- Perceeloppervlakte: 93 m²
- Woonoppervlakte: 107 m²
- 4 slaapkamers, meerdere keukenopstellingen en badkamers
- Energielabel C
- Dubbel glas en grotendeels kunststof kozijnen
- Kluswoning
- Gelegen nabij uitvalswegen en diverse voorzieningen

Een woning met ruimte en mogelijkheden, op een centrale locatie in Uithoorn.

Kenmerken