Beschrijving

Modern 2-kamerappartement met energielabel A in Roelofarendsveen!

In het bruisende centrum van Roelofarendsveen, op slechts een paar minuten lopen van winkels, horeca en het openbaar vervoer, ligt dit sfeervolle en luxe afgewerkte 2-kamerappartement in het voormalige postkantoor. Het appartement is gelegen op de derde verdieping en beschikt over een eigen berging op de begane grond.

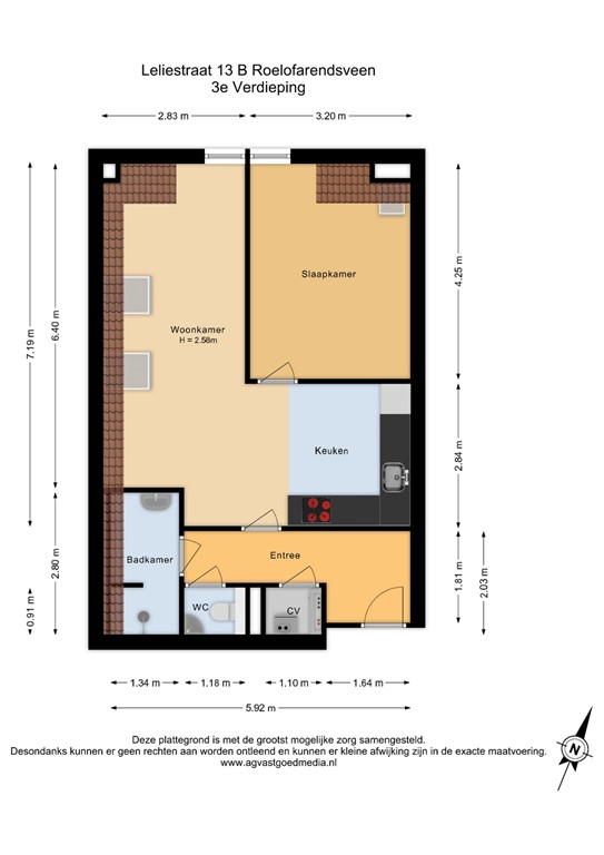
Het appartement van circa 50 m² heeft een slimme indeling: een entree met hal en toiletruimte, een moderne badkamer met inloopdouche en wastafel, een lichte en ruime woonkamer met ramen in het schuine dak waardoor veel natuurlijk licht binnenvalt en een open keuken in L-opstelling voorzien van alle moderne inbouwapparatuur. De slaapkamer is van prima formaat en biedt voldoende ruimte voor een comfortabel bed en kasten.

Gebouwd in 2019 en met Energielabel A, geniet je hier van een energiezuinig en onderhoudsvriendelijk appartement. 

Het appartementencomplex ‘De Post’ is kleinschalig en goed onderhouden. Via de centrale entree met video-intercom en brievenbussen heb je toegang tot het trappenhuis, de lift en de bergingen.

Dankzij de gunstige ligging ben je snel op de A4 of A44, richting de Randstad en grote steden. De bus brengt je rechtstreeks naar Schiphol of Leiden Centraal.

Kortom: comfortabel wonen op een toplocatie! Ben jij op zoek naar een sfeervol en modern appartement in het hart van Roelofarendsveen? plannen we snel een bezichtiging.

Indeling

Bij binnenkomst op de begane grond treft u de centrale hal met brievenbussen, toegang tot de bergingen, trapopgang en de lift.

Overige verdiepingen

3e verdieping:
Via de centrale hal bereikt u de voordeur van het appartement. De entree biedt ruimte voor een garderobe en geeft toegang tot de woonkamer, de badkamer, de toiletruimte en een bergkast met de cv-ketel. De badkamer is uitgerust met een wastafel, een inloopdouche en een opstelplaats voor de wasmachine en droger.

De woonkamer is praktisch ingedeeld in een L-vorm en biedt toegang tot de slaapkamer. De open keuken sluit hier mooi op aan: een luxe, ruime en moderne keuken die perfect past binnen het verzorgde geheel.

Bijzonderheden

Bieden vanaf € 300.000,- / vraagprijs € 350.000,-
- Bouwjaar 2019
- Woonoppervlakte 50m²
- Openbaar parkeren
- Gezonde VVE, maandelijkse servicekosten bedragen € 63,81
- Lift aanwezig
- Voorzien van warmte terugwin installatie
- Energielabel A
- Oplevering in overleg

Kenmerken