Beschrijving

Koopsom vanaf € 500.000,--
Halfvrijstaande jaren '30-woning met grote aanbouw en een diepe, zonnige tuin op het zuidwesten!

Aan de voet van het Braassemermeer, met volop groen en water in de directe omgeving, vindt u deze sfeervolle halfvrijstaande 6-kamerwoning in de gewilde jaren '30-stijl.

De woning is in 2000 volledig gerenoveerd en gemoderniseerd, inclusief nieuwe elektra, badkamer, keuken en een geheel vernieuwd dak. Daarnaast is er destijds een ruime aanbouw op de begane grond gerealiseerd, waardoor de woning nu beschikt over een volwaardige slaapkamer en badkamer op de begane grond — ideaal voor levensloopbestendig wonen.

In totaal telt de woning maar liefst vijf slaapkamers, een royale en lichte woonkamer, een halfopen keuken en een praktische bijkeuken. De woning heeft energielabel C, is voorzien van airconditioning en beschikt over maar liefst 9 zonnepanelen, wat bijdraagt
aan een energiezuinig en comfortabel woonklimaat.

Kortom: Een karaktervolle en goed onderhouden woning op een zeer centrale locatie in de Randstad!

Ligging:
Naast de rustige ligging met volop groen en water in de directe omgeving, is de woning zeer centraal gelegen t.o.v. de uitvalswegen naar de steden Leiden/Den Haag, Amsterdam/Schiphol en Alphen aan den Rijn. Binnen 15 tot 20 autominuten zijn deze steden goed te bereiken.

Rijnsaterwoude ligt midden in het Groene Hart, tussen het Braassemermeer en de Westeinderplassen aan de Ringvaart. Op fietsafstand van de woning bevinden zich scholen, winkels, openbaar vervoer en sport- en recreatievoorzieningen. Een basisschool is op loopafstand van de woning gelegen. 

Het Braassemermeer biedt een uitgestrekt watersportgebied dat bekendstaat om zijn veelzijdigheid. Hier kunt u genieten van zeilen, suppen, kanoën en zelfs ijszeilen in de winter. De omliggende jachthavens, zoals Watersportcentrum Braassemermeer, bieden uitgebreide faciliteiten, waaronder ligplaatsen met stroom en water, sanitaire voorzieningen, en onderhoudsdiensten . 

Voor natuurliefhebbers zijn er recreatiegebieden zoals De Hemmen, waar u kunt wandelen, zwemmen en ontspannen op de ligweiden . De nabijheid van gezellige dorpen met restaurants, cafés en winkels maakt deze locatie ideaal voor wie het buitenleven wil combineren met comfort en gemak.

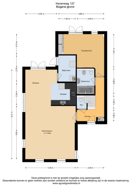
Indeling

Via de entree aan de zijkant van de woning betreedt u de hal met moderne meterkast, trapopgang en een separate toiletruimte met toilet en fonteintje. 

Vanuit hier is er toegang tot de centrale hal met directe doorgang naar de ruime en lichte woonkamer met hoge plafonds en veel natuurlijke lichtinval door de grote
raampartijen. Aan de achterzijde van de woning is er een eetkamer aanwezig met openslaande deuren naar de zonnige tuin op het zuidwesten. 

De halfopen keuken is praktisch ingedeeld en voorzien van een U-vormige keukenopstelling. Aansluitend bevindt zich de bijkeuken met wasmachineaansluiting en
extra bergruimte.

Dankzij de grote aanbouw (gerealiseerd in 2000) is de begane grond aanzienlijk vergroot en is deze uniek door de aanwezigheid van een volwaardige slaapkamer en badkamer op de begane grond, ideaal voor levensloopbestendig wonen of als logeerkamer. 

De slaapkamer aan de tuinzijde is ruim en heeft dubbele openslaande deuren naar buiten. De aangrenzende badkamer beschikt over een ligbad, een wastafel, een bidet en een tweede toilet.

Eerste verdieping

Op de eerste verdieping bevinden zich vier goed bemeten slaapkamers, bereikbaar via een centrale overloop. De kamers variëren in afmeting en zijn stuk voor stuk voorzien van raampartijen voor daglichttoetreding. De slaapkamers aan de voor- en achterzijde beschikken over een sfeervolle dakkapel of dakraam, wat zorgt voor extra ruimte en licht.

Daarnaast zijn er meerdere vaste kasten aanwezig, ideaal voor het opbergen van kleding, linnengoed of seizoensspullen. 

Dankzij de efficiënte indeling en het royale aantal kamers is deze verdieping uitermate geschikt voor een groot gezin, thuiswerken of het creëren van hobby- en logeerruimtes.

Tuin

De fraai aangelegde, diepe achtertuin ligt ideaal op het zonnige zuidwesten en is een waar paradijs voor tuinliefhebbers. De tuin biedt volop privacy en wordt omgeven door groen en volwassen beplanting, waaronder sfeervolle plantenborders die kleur geven in elk seizoen. Dankzij de ligging geniet u hier de hele dag van de zon, terwijl er voldoende ruimte is voor meerdere terrassen, speelplekken of een moestuin.

Achterin de tuin bevindt zich een ruime, vrijstaande houten berging voorzien van elektra, ideaal voor het stallen van (tuin)gereedschap, fietsen of het inrichten van een hobbyruimte. Aangrenzend aan de berging is een praktische overkapping gerealiseerd, perfect voor het droog parkeren van fietsen of als beschutte zitplek.

Deze tuin vormt een perfecte verlenging van het woongenot en biedt alle mogelijkheden voor buitenleven in alle rust en ruimte.

Bijzonderheden

- Bouwjaar: 1938
- Woonoppervlakte: 127 m²
- Perceeloppervlakte: 262 m² eigen grond
- Geheel gerenoveerd/gemoderniseerd in 2000, inclusief: Vernieuwing van het dak, nieuwe elektra, nieuwe badkamer en keuken
- Grote aanbouw op de begane grond
- Voorzien van slaapkamer en badkamer op de begane grond (levensloopbestendig wonen mogelijk)
- Vijf slaapkamers aanwezig.
- Ruime en lichte woonkamer met halfopen keuken
- Bijkeuken met wasmachineaansluiting en extra bergruimte
- Diepe, zonnige achtertuin op het zuidwesten met Vrijstaande houten berging.
- Voorzien van airconditioning en 9 zonnepanelen (duurzaam en energiezuinig)
- Centraal gelegen in een groene en waterrijke omgeving

Koopsom vanaf € 500.000,-- / Vraagprijs € 550.000,--
Alle biedingen vanaf € 500.000,-- worden in overweging genomen.

Kenmerken