Beschrijving

Luxe en sfeervol 3-kamerappartement met zonnige stadstuin aan de Herengracht in Leiden!

Koopsom vanaf € 375.000,-

Aan één van de mooiste grachten van Leiden, midden in het historische centrum, bevindt zich dit stijlvolle en instapklare 3-kamerappartement met een ruime, zonnige tuin op het westen. De woning ligt op de begane grond van een karakteristiek Rijksmonument uit circa 1650 en combineert moderne luxe met authentieke details en een rustige ligging aan het water.

De Herengracht is een van de meest geliefde locaties in Leiden. Op loopafstand vind je gezellige cafés, restaurants, winkels en supermarkten, terwijl het station en de uitvalswegen eenvoudig bereikbaar zijn. Parkeren kan direct voor de deur of in de directe omgeving met een parkeervergunning.

Indeling

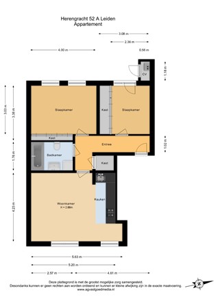
Begane grond: Via de centrale entree met intercom en brievenbus bereik je de woning. De hal met praktische bergkast biedt toegang tot alle vertrekken.

Aan de achterzijde ligt de eerste slaapkamer, voorzien van op maat gemaakte vaste kasten en een praktisch stapelbed met onderbed. Vanuit deze kamer leiden openslaande deuren naar de beschutte stadstuin, waar je volop kunt genieten van de middag- en avondzon.

De tweede (hoofd)slaapkamer grenst eveneens aan de tuin en beschikt over ruime inbouwkasten die perfect passen bij het moderne, rustige interieur.

De volledig betegelde badkamer is voorzien van een ligbad met douche, wastafelmeubel, toilet, designradiator en aansluitingen voor wasmachine en droger.

Aan de voorzijde bevindt zich de lichte en ruime woonkamer met hoge plafonds en grote ramen die zorgen voor een prettige sfeer en veel natuurlijk licht. De open keuken is modern uitgevoerd in lichte tinten met RVS-accenten en beschikt over diverse inbouwapparatuur, waaronder een combimagnetron, vaatwasser, gaskookplaat, afzuigkap en koel-vriescombinatie.

Tuin

De zonnige stadstuin (circa 7,62 x 3,83 meter) ligt op het westen en biedt veel privacy. Een ideale plek om in alle rust buiten te zitten, midden in de binnenstad. In de tuin bevindt zich tevens een handige bergkast met de CV-opstelling (HR-combiketel).

Bijzonderheden

- Bouwjaar: ca. 1650
- Rijksmonument
- Woonoppervlakte: ca. 59 m² (volgens NEN 2580)
- Inhoud: ca. 221 m³
- Geheel voorzien van dubbele beglazing en/of voorzetramen
- Het geheel wordt gemeubileerd verkocht.
- Mechanische ventilatie in keuken en badkamer
- Zonnige tuin met veel privacy
- Bouwtechnische keuring aanwezig
- Parkeervergunning via Gemeente Leiden.
- Gezonde en actieve VvE, maandelijkse bijdrage €150,-
- Oplevering in overleg

Koopsom vanaf € 375.000,- / Vraagprijs € 400.000,-
Alle biedingen vanaf € 375.000,- worden in overweging genomen.

Kenmerken