Beschrijving

Rustig gelegen appartement nabij het centrum van Kudelstaart. Het appartement is een maisonnette en ligt op de tweede en derde woonlaag. De indeling voorzien nu in een tweetal slaapkamers maar op de ruime zolderverdieping kunnen nog eenvoudig twee kamers extra gecreëerd worden.  De woning is goed onderhouden en in nette staat. Het heeft een energielabel B.

Kudelstaart is een landelijke gelegen dorp aan de voet van de Westeinderplassen. Het appartement ligt op loopafstand van het 'Winkelcentrum Kudelstaart' wat beschikt over tal van winkels en horecagelegenheden en een bushalte. De uitvalswegen in de richting Amsterdam/Schiphol en Leiden/Den Haag zijn tevens binnen 10 minuten te bereiken.

De aanwezige jachthavens, de landelijke woonomgeving en de  Westeinderplassen zorgen voor een scala aan (water-)sport- en recreatiemogelijkheden. Vanaf de woning zijn er diverse fiets- en wandelroutes die u door dit prachtige gebied leiden.  Tenslotte zijn er in de nabijheid verschillende sportaccommodaties/sportclubs aanwezig met o.a. voetbal, tennis, handbal en een fitness-/sportschool. Er is een eigen skeelerbaan, er zijn lagere scholen en ook eventuele kinderopvang is goed geregeld.

Indeling

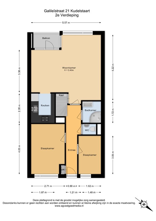
U bereikt de woning vanaf de galerij vanwaar u in de lange centrale hal de woning binnenkomt. Hier vind u direct de twee slaapkamers, beide voorzien van een laminaat vloer. De kleinere kamer beschikt over een grote kastenwand. De badkamer is praktisch ingedeeld en heeft een douchecabine en wastafelmeubel. De naastgelegen toiletruimte beschikt over een staand toilet en fonteintje. 

De woonkamer ligt op het zuidwesten en is heerlijk licht. Er is een handige trapkast en de ook hier is de vloer afgewerkt met laminaat. Op het inpandige balkon zit u heerlijk beschut. De open keuken beschikt over een 4-pits gastoestel, recirculatiekap, koelkast, vaatwasser en oven/magnetron. 

Op de ruime tweede verdieping kunnen eenvoudig nog twee kamers gecreeerd worden. De vaste trap en ramen zijn er. Ook is hier de opstelplaats voor de c.v. (Intergas 2016) en wasmachine/droger.

De zich in de hal bevindende meterkast heeft 4 groepen en glasvezel. Op de begane grond is de berging .

Bijzonderheden

- Bouwjaar 1986
- Woonoppervlak: 88 m2 
- Ligging aan rustige straat nabij centrumvoorzieningen
- Goed onderhouden
- Energielabel B
- Ligging met woonkamer/balkon op zuidwesten
- Maisonnette appartement met veel licht
- Vier slaapkamers mogelijk
- Gezonde VVE, servicekosten € 191,30
- Oplevering in overleg.

Kenmerken