Beschrijving

Midden in het centrum van Hillegom bieden wij u een ruim 95m² grootte bovenwoning aan. Naast de fantastische locatie en zonnige ligging beschikt deze woning over een ruime woonkamer met schuifpui naar het dakterras, 2 ruime slaapkamers en een wasruimte. Het geheel is netjes afgewerkt en beschikt over 8 zonnepanelen.

Het centrum van Hillegom is een drukbezochte plek door de aanwezigheid van diverse winkels, leuke restaurants/cafés en supermarkten. Naast de korte afstand tot diverse uitvalswegen is vanuit hier gemakkelijk het station van Hillegom te bereiken welke u naar o.a. Haarlem en Leiden brengt, ook Amsterdam is eenvoudig en snel te bereiken.

Indeling

Entree via eigen ingang vanaf de winkelstraat.

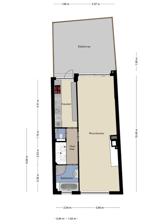
Eerste verdieping

Op de eerste verdieping vindt u een royale woonkamer met open haard, schuifpui naar het zonnig gesitueerde dakterras van ca. 27m² en aan de voorzijde een ontzettend leuk nisje waar u vrij uitzicht heeft! De dichte keuken met moderne keukenopstelling is voorzien van diverse apparatuur, o.a. een antraciet werkblad, een 5-pits inductiekookplaat, een afzuigkap, een combi oven-magnetron, een koel- vriescombinatie en een vaatwasser. Ook vanuit de keuken is het dakterras bereikbaar. Badkamer met ligbad, designradiator en douche. Tevens is er een apart toilet met fonteintje. De volledige 1e verdieping is voorzien van een laminaatvloer.

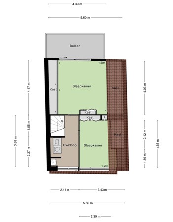
Tweede verdieping

Via de trapopgang heeft u toegang tot de tweede verdieping met 2 slaapkamers, aparte praktische wasruimte met ook opstelling van de CV installatie, bergruimte (onder het dakbeschot) en het zonnig gesitueerde dakterras! Ook deze etage is voorzien van een laminaatvloer.

Balkon

1e verdieping vanuit woonkamer en keuken:
Zonnig dakterras van maar liefst 27m², gesitueerd op zuidoost. Tevens beschikt deze over een zonnescherm.
Op de 2e verdieping bevindt zich een dakterras van 8m², te bereiken via de slaapkamer aan de achterzijde.

Bijzonderheden

Bieden vanaf € 375.000,-
- Woonoppervlakte 95m²
- Dak vernieuwd in 2015
- Dakterras van maar liefst 27m²
- Maandelijkse servicekosten VvE: € 78,-
- Unieke locatie met heerlijk zonnige dakterras
- Energielabel D
- Oplevering in overleg
- Bouwjaar 1928
- Beschermd dorpsgezicht

Kenmerken